36 фото великої 3-кімнатної квартири 175 кв.м в сучасному стилі
Просторі апартаменти на Саксаганського
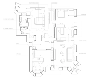
Дизайн-проєкт створений для сім’ї з трьох людей. Завданням було зробити світле, просторе і лаконічне середовище з яскравими акцентами та теплими тонами. В даній квартирі досить високі стелі, оскільки будівлю було зведено ще в 1911 році. Для оздоблення стелі обрали великі багети, а для підлоги - великі плінтуси. Загалом приміщення квартири умовно розділили на дві зони. До відкритої частини відноситься прихожа, кухня-їдальня, вітальня з акцентним еркером блакитного кольору та зона домашнього офісу. Цей простір відчувається єдиним через те, що з'єднаний між собою порталами замість дверей. А от до приватної частини відносяться дві спальні, що ховаються за дверима. Для підловгого покриття обрали керамограніт, а також ймовірно ламінат або плитку у стилі французької ялинки. На стелях немає багато освітлення, як це часто буває в сучасних інтер'єрах, а навпаки одна велика люстра що кріпиться до красивої гіпсової ліпнини. Зберегти вайб історичного приміщення також допомагають і інші деталі, наприклад високі класичні двері в яких можна відкрити одразу дві дверки. Також є багато сучасних елементів, які гарно вписалися в дану естетику, зокрема: дизайнерські радіатори, латунна сантехніка та круглі вмикачі.
Додаткова інформація
Загальна
- Стиль: Сучасна класика
- Розмір: 175
- Кімнат: 3
В проєкт входить
- Кухня, 9 фото
- Вітальня, 9 фото
- Спальня, 5 фото
- Ванна кімната, 4 фото
- Прихожа, 4 фото
- Дитяча, 5 фото
Схожі дизайни інтер'єрів
Обговорення інтер'єру квартири
На основі 0 оцінок
Нам важливі Ваші емоції. Поставте свою оцінку та коментар, щоб поділитися досвідом з іншими користувачами Інтеріум.




































Поділитися
Поділіться матеріалом, для нас це важливо
Або скопіюйте посилання