32 фото великої 4-кімнатної квартири 128 кв.м в сучасному стилі
Сучасна класика в ЖК Варшавський
Ця квартира ідеальне поєднання сучасного дизайну з класичними елементами. Це вдалося зробити завдяки новітнім матеріалам у поєднанні з декоративними елементами на стінах. Велика та простора кухня-вітальня виконана в бежевих відтінках з використанням мармурової плитки на кухні. Доповнюють інтер'єр красиві бра, світильники та картини на стінах. Родзинкою приміщення є невеличкий кусок стіни між кухнею та вітальнею в якому розмістили камін. Кожне приміщення гармонійно поєднується з іншим завдяки молочним та білим відтінкам, а також меблям зі світлого дерева. Окрім кухні-вітальні вдалося створити затишок ще в трьох кімнатах: спальні, кабінеті та дитячій. Щоправда дитяча очікувано відрізняється від всієї квартири - тут додали малюнок на стіні, драбину та зробили меблі в блакитному кольорі. Зручним рішенням є м'яке підвіконня на якому можна спостерігати за подіями на вулиці чи читати книгу.
Додаткова інформація
Загальна
- Стиль: Сучасна класика
- Розмір: 128
- Кольори: білий, мармур, кремовий, бежевий
- Кімнат: 4
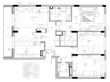
В проєкт входить
- Кухня, 18 кв.м, 3 фото
- Вітальня, 18 кв.м, 4 фото
- Спальня, 21,9 кв.м, 4 фото
- Ванна кімната, 5,4 кв.м, 4 фото
- Туалет, 3,7 кв.м, 3 фото
- Прихожа, 16,5 кв.м, 5 фото
- Гардероб, 5 кв.м, 2 фото
- Кабінет, 14,9 кв.м, 4 фото
- Дитяча, 16,4 кв.м, 3 фото
Схожі дизайни інтер'єрів
Обговорення інтер'єру квартири
На основі 3 оцінок
Нам важливі Ваші емоції. Поставте свою оцінку та коментар, щоб поділитися досвідом з іншими користувачами Інтеріум.
































Поділитися
Поділіться матеріалом, для нас це важливо
Або скопіюйте посилання