11 фото великої 1-кімнатної квартири 44 кв.м в скандинавському стилі
Компактні апартаменти для здачі
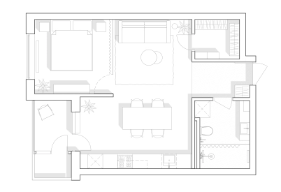
Дизайн цієї квартири розроблявся під здачу на сайті air b&b. Як каже сама дизайнерка про цей інтер'єр: "Загальна ідея дизайну – це практично його відсутність". В цій квартирі немає чогось екстра, все досить просте та зрозуміле і від того зручне в користуванні. Спальня відділена від загальної зони квартири скляною стіною та дверима. Вона хоч і невеличка, але досить простора. Там, окрім ліжка, є ще дві тумби та невеличка етажерка для книг. Для того, щоб усамітнитися достатньо використати штору вмонтовану в стелю. В зоні вітальні є диван, кавовий столик, торшер в одном стилі з кухонними бра та рустикальний килим на підлозі. Біля дивану ми бачимо також двері, які ведуть в окрему гардеробну кімнату. Кухня мінімалістична в білому кольорі. Для фартуха обрали плитку в скандинавському стилі - невеличкі білі квадрати, а також вмонтували два чорних бра, які гармоніюють з меблевими ручками та стільцями. З кухні ми також можемо вийти на балкон.
Додаткова інформація
Загальна
- Стиль: Скандинавський
 - Розмір: 44
 - Кімнат: 1
 
В проєкт входить
- Кухня, 2 фото
 - Вітальня, 2 фото
 - Спальня, 5 фото
 - Ванна кімната, 2 фото
 
Схожі дизайни інтер'єрів
Обговорення інтер'єру квартири
На основі 1 оцінки
Нам важливі Ваші емоції. Поставте свою оцінку та коментар, щоб поділитися досвідом з іншими користувачами Інтеріум.











Поділитися
Поділіться матеріалом, для нас це важливо
Або скопіюйте посилання