43 фото великої 1-кімнатної квартири 42 кв.м в мінімалістичному стилі
Сірий мінімалізм для дівчини в ЖК Республіка
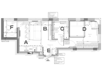
Дизайнери створювали цей проєкт для молодої дівчини в сучасному, мінімалістичному стилі з використанням сірих кольорів як базових. Незважаючи на переважання сірих тонів додали у інтер’єр трохи теплого зеленого кольору у вигляді текстилю, пуфів, штукатурки в спальні. На лоджії організували робоче місце, в кухні-вітальні облаштувати зону для приготування їжі, обідню зону та зону відпочинку, в спальні облаштували гардеробну шафу та приховали її за шторами. Зі сторінки дизайнерів дізнаємося більше про використані матеріали, а саме вініл Wineo для покриття підлоги; керамограніт Megagres та керамогранітну плитку Laroya Dust від Cerrad для оздоблення стін та підлоги у санвузлі. Стелі та стіни пофарбували фарбами від Benjamin Moore. На кухні та у спальні використали декоративну штукатурку мікробетон від TM Brodeco. Усі меблі виконані з ДСП Egger.
Додаткова інформація
Загальна
- Стиль: Мінімалізм
- Розмір: 42
- Кольори: білий, сірий, чорний, фісташковий, оливковий, зелений
- Кімнат: 1
В проєкт входить
- Кухня, 7 фото
- Вітальня, 11 фото
- Спальня, 5 фото
- Ванна кімната, 12 фото
- Прихожа, 4 фото
- Кабінет, 4 фото
Схожі дизайни інтер'єрів
Обговорення інтер'єру квартири
На основі 2 оцінок
Нам важливі Ваші емоції. Поставте свою оцінку та коментар, щоб поділитися досвідом з іншими користувачами Інтеріум.











































Поділитися
Поділіться матеріалом, для нас це важливо
Або скопіюйте посилання