13 фото великої 1-кімнатної квартири 52 кв.м в мінімалістичному стилі
Obolon plaza apartment
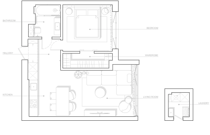
Мінімалістична квартира для здачі в оренду. Дизайнери об’єднали хол, кухню, столову і вітальню. За підлогове покриття у всій квартирі обрали мікроцемент. Дизайнери кажуть, що для багатьох такий елемент видається холодним, але головне правильно підібрати інший декор. У вітальні всі меблі є досить акцентними: модульний диван-хмаринка, оранжеве крісло незвичної форми, кавовий столик та лампа поруч з кріслом, а також досить цікава тумба під столом, дещо нагадує японський стиль. Нижні фасади кухні виконані зі світлого дерева, а верхні - білі. Над столом вигинається телескопічна лампа. Спальня хоч і досить компактна та вмістила окремий гардероб, який ховається за дверима на рельсі. Узголів'я ліжка виконане зі світлого дерева та м'яких частин. Поруч є приліжкове бра та торшер.
Додаткова інформація
Загальна
- Стиль: Мінімалізм
 - Розмір: 52
 - Кольори: білий, сірий, світло-коричневий
 - Кімнат: 1
 
В проєкт входить
- Кухня, 3 фото
 - Вітальня, 5 фото
 - Спальня, 4 фото
 - Ванна кімната, 1 фото
 
Схожі дизайни інтер'єрів
Обговорення інтер'єру квартири
На основі 0 оцінок
Нам важливі Ваші емоції. Поставте свою оцінку та коментар, щоб поділитися досвідом з іншими користувачами Інтеріум.













Поділитися
Поділіться матеріалом, для нас це важливо
Або скопіюйте посилання