22 фото великої 2-кімнатної квартири 72 кв.м в скандинавському стилі
Двокімнатна квартира в ЖК Рибальський
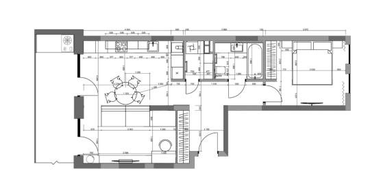
Дизайн інтер'єру цієї двокімнатної квартири створений для молодої пари. Дизайнери зробили певне перепланування, щоб втілити всі задуми, а саме розширили простір кухні-вітальні та трішки зменшили спальню, щоб ванна була більшою. Квартира виконана в стриманих тонах з використанням сучасних елементів декору. Так, у вітальні ми бачимо вмонтовані в стелю світильники, дизайнерські радіатори, консольний стіл. Кухню виконали в поєднанні оливкового кольору з деревом та сірою плиткою. Спальна повністю біла за виключенням ліжка та підлогового покриття. На стіні за ліжком бачимо декоративну ліпку цікавої форми, яка приносить різноманіття цьому однотонному приміщенню.
Додаткова інформація
Загальна
- Стиль: Скандинавський
- Розмір: 72
- Кольори: білий, сірий, оливковий, дерево
- Кімнат: 2
В проєкт входить
- Кухня, 15 кв.м, 3 фото
- Вітальня, 14 кв.м, 4 фото
- Спальня, 12,48 кв.м, 4 фото
- Ванна кімната, 4,14 кв.м, 4 фото
- Прихожа, 4 кв.м, 5 фото
- Гардероб, 2 кв.м, 2 фото
Схожі дизайни інтер'єрів
Обговорення інтер'єру квартири
На основі 1 оцінки
Нам важливі Ваші емоції. Поставте свою оцінку та коментар, щоб поділитися досвідом з іншими користувачами Інтеріум.






















Поділитися
Поділіться матеріалом, для нас це важливо
Або скопіюйте посилання